About this listing
Introducing "Barronstown - A Pet-Friendly Oasis with Fire Pit"; your perfect getaway nestled in the idyllic coastal charm of Callala Beach, NSW. This family-friendly retreat is designed to accommodate up to 11 guests, balancing a blend of luxury with home comforts, ensuring your holiday is both relaxing and entertaining.
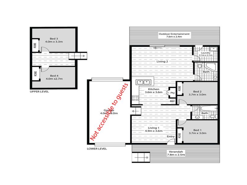
The property boasts four well-appointed bedrooms, each with high-quality bed linen and roomy wardrobes. Retreat to the cozy settings after a day of beach fun, guaranteed to rejuvenate you for the next day's adventure. Two bathrooms stocked with essentials such as bath towels, shampoo, conditioner and shower gel ensure your comfort and convenience.
Step outside and you're treated to a spacious, fully fenced yard - a safe haven for your beloved pets and children. Here, you'll find a showstopper fire pit, where you can gather around for late-night storytelling or marshmallow toasting. A dedicated barbecue area with all necessary utensils lets you whip up al fresco feasts to enjoy in the outdoor dining area. An outdoor shower is at your disposal for a quick sandy rinse-off after returning from the nearby beach.
Indoors, a fully-equipped kitchen with a coffee machine, microwave, oven, and a generous supply of pantry items awaits your culinary explorations. With ample dining space and a comfy sitting area, you can spend quality time with your loved ones. A Smart TV and a collection of board games and children's books guarantee hours of entertainment for all ages.
Additions such as a portable Bluetooth speaker, a clothes rack, ironing facilities, a dedicated parking space for two cars, and complimentary Wi-Fi connectivity further enhance your stay.
Located just a stone's throw from the pristine sands of Callala Beach, you can spend your days frolicking in the crystal-clear waters of Jervis Bay. Take a leisurely stroll to uncover local boutiques, cafes, and restaurants, or embark on one of many nature trails nearby.
Wrapping up, Barronstown isn’t just your typical getaway -- it's a space curated to offer comfort, entertainment & pure relaxation. Immerse yourself in the picturesque setting, dive into countless activities around and create cherishing memories at this blissful Callala Beach retreat.


































